Products
2 MVA Transformer
Rated Power: 2 MVA
Primary Voltage: 22KV
Secondary Voltage: 415V
Current Rating:52.49A/2782.49A
Number of Phases: 3
Frequency: 50 Hz
Features
2 MVA Transformer - Your Reliable Choice for Efficient Power Distribution
2 MVA Transformer Specification
Transformers play a vital role in power distribution, and the 2 MVA transformer from our company is the perfect solution to meet your power requirements. Our 2 MVA transformer is designed to provide reliable and efficient power supply for industrial, commercial, and residential use.
22kv 2MVA Transformer Data Sheet:
Rated Power | 2 MVA |
Primary Voltage | 22 KV |
Secondary Voltage | 415 V |
2 MVA Transformer Current Rating | 52.49A/2782.49A |
Number of Phases | 3 |
Frequency | 50 Hz |
Cooling Type | ONAN/ONAF |
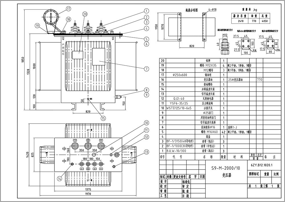
2 MVA Transformer Weight | 4050kg |
2 MVA Transformer Dimensions | 1970*1420*1850mm |
Outline Drawing:

2000KVA 10KV Transformer Outline Drawing for reference
Product Certificate:
Our 22kv 2MVA transformer has passed the ISO 9001:2015 quality management system certification, ensuring the highest quality and safety standards. Moreover, we provide several other certifications such as CE, UL, IEC, and ROHS certification.

Product Production Process:
Our 2 MVA transformer undergoes a rigorous production process that ensures high-quality standards and customer satisfaction. The production process includes the following processes:
- Steel Cutting and Winding
- Core Assembly and Insulation
- Winding and Termination
- Core and Coil Insulation
- Painting and Finishing

Product Export Packaging:
Our 22kv 2MVA transformers are packed with utmost care to ensure safe and secure transportation to our customers. We provide standard packaging options such as wooden crates, pallets, and foam packing. Additionally, we customize packaging based on customer requirements.


Export Capacity:
We are committed to meeting the demand of our clients worldwide with our efficient and quality transformers. Our 2 MVA transformer has an export capacity of 500 units per month, and we can ensure timely delivery to any part of the world.

Customized for our customer from South Africa. Model: 4000KVA 11KV 0.415KV transformer. Requirement: Side outgoing line
In conclusion, our 2 MVA transformer provides reliable and efficient power distribution to industrial, commercial, and residential areas. With our ISO 9001:2015 certification and various other certifications, we ensure the highest quality standards. Our rigorous production process and international-grade export packaging make us the perfect choice for our clients worldwide. Please feel free to reach out to us for your transformer requirements.
Hot Tags: 2 mva transformer, China, suppliers, manufacturers, factory, buy, price, for sale, transformer on electric pole, power transformer 20 mva, 200kva transformer, 2 5mva transformer, 100kva single phase transformer, 200 kva transformer
You Might Also Like
Learn More11KV 3 Phase Pole Mounted Distribution Transformers
Learn More100 KVA Transformer
Learn More50 KVA Three Phase Transformer
Learn More630 KVA 3 Phase Pole Mounted Distribution Transformer
Learn More2.5 MVA Oil Immersed Electrical Distribution Transfo...
Learn MoreKS13 Oil Immersed Mining Power Transformer
Send Inquiry






