Products
Modular High Voltage HV Substation Switchgear
XGN2 type modular high-voltage switchgear cabinet is applied to receive and distribute the electrical energy in three-phase AC power system with rated voltage 3, 6, 10KV and rated frequency 50HZ, especially for the frequently operated occasion.
Features
Products Description
XGN2 type modular high-voltage switchgear cabinet is applied to receive and distribute the electrical energy in three-phase AC power system with rated voltage 3, 6, 10KV and rated frequency 50HZ, especially for the frequently operated occasion. Its busbar system is a single busbar (which can derive the single busbar with bypass and double busbar structure).
The switchgear cabinet is in line with the requirements of the National Standards GB3906 3-35KV AC Metal-enclosed switchgear and the international Standard IEC298, also there are proposed "five anti" interlocking functions such as anti-breaking and closing by mistaken for circuit breaker, anti-breaking and closing disconnector switch with load, anti-breaking and closing grounding wire/switch with load, anti closing circuit breaker/disconnector switch with grounding wire/switch, anti entering charged interval by mistaken.

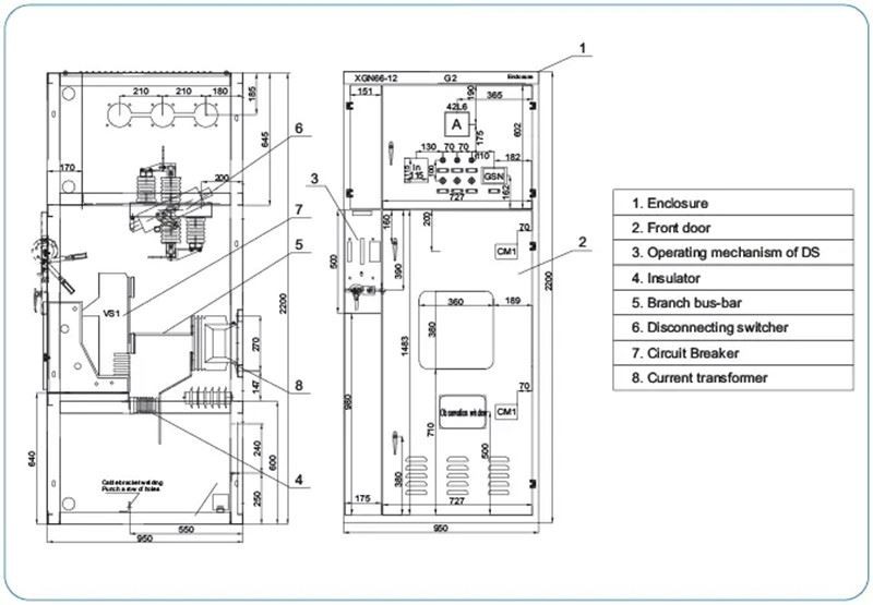
Structure Description
The switchgear is of box-type metal-enclosed fixed structure and the cubicle consists of profies and G profiles assembled by several connection pieces .It is divide into four compartments ,namely busbar compartment .CB compartment ,metering compartment and cable compartment .The parts processing shall be made by CNC punching machine ,CNC bending machine and sophisticated machines provided in CNC processing center ,ensuring high precisopm of form ,position and dimension ,fast and accurate making ,fiexible for combination of different options ,which can meet different demands form customers .
Main Features
1.The cubicle is of assembled structure ,no welding ,high mechanical strength and artistic apperance .
2.The rear upper part is for GN30-12 rotarydisconnect switch and lower part for GN19-12C disconnect switch .The mechanical interlock device operated as per procedures can provide reliable safety protection for the operation personal and equipment .
3.The main switch adopted is of monoblock type ,options such as ZN63-12(VS1-12)and VD4-12
4.Compulsory mechanical locking method is employed in the interlocks among main switches,disconnectors and cubicle door to meet the ‘five -proof ‘interlock function,enjoying random combination with ring main unit .
Technical Parameter
No. | Item | Unit | Technical data | ||
1 | Rated voltage | kV | 3.6, 7.2, 12 | ||
2 | Rated current | A | 630 1000 | 1250 2000 | 2500 3150 |
3 | Rated short circuit breaking current | kA | 20 | 31.5 | 40 |
4 | Rated short time withstand current | kA | 20 | 31.5 | 40 |
5 | Rated peak withstand current | kA | 50 | 80 | 100 |
6 | Rated short circuit making current | kA | 50 | 80 | 100 |
7 | Rated duration of short circuit | s | 4 | ||
8 | Degree of protection | IP2X | |||
9 | Bus system | Single bus, single bus with bypass, double bus | |||
10 | Operating method | Electromagnetism, spring storage energy | |||
11 | Outline dimension | mm | 950^1000x2300 (below 1250A) | ||
Products Details



Technological Process

Our Certificate


Contact us to Get the best quotation!
Hot Tags: modular high voltage hv substation switchgear, China, suppliers, manufacturers, factory, buy, price, for sale
You Might Also Like
Learn More220kV 3 Phase Two Winding OLTC Step Down Power Trans...
Learn More10KV Three Phase Oil Immersed Distribution Transformer
Learn More20KV Three Phase Oil Filled Distribution Transformer
Learn More3 Phase Oil Immersed Type Distribution Transformer
Learn More20KV Outdoor Cast Resin Dry Type Electrical Transformer
Learn MoreClass H Dry Type Cast Resin HV Power Transformer
Send Inquiry





